Наружная реклама
Реклама на радио
Реклама на телевидении
Реклама в интернете и печатных СМИ
Реклама в помещениях
Реклама на/в транспорте
Изготовление рекламы
в Горно-Алтайске
Фасад Медиа Групп – рекламно-производственная компания, оказывающая в Горно-Алтайске и Республике Алтай услуги по дизайнерской разработке интерьера магазина (шоу-рум). Мы оказываем полный спектр услуг:
РПК «Фасад Медиа Групп» предлагает гибкие условия и выгодные цены по разработке интерьера магазина (шоу-рум) в Горно-Алтайске и Республике Алтай. Для получения коммерческого предложения по дизайну интерьера магазина (шоу-рум) в Горно-Алтайске обращайтесь по телефону: 8 800 201-23-74 или оставьте заявку на сайте. Разработку интерьера магазина (шоу-рум) «под ключ» гарантируем!
Разработка интерьера магазина (шоу-рум) профессиональной дизайн-студией пользуется большим спросом среди представителей бизнеса. Востребованность данной услуги объясняется тем, что без качественного, профессионального интерьера магазина (шоу-рум) руководству компании сложно получить максимальный эффект от общения с потенциальными покупателями или клиентами, а работники компании не могут выполнять возложенные на них обязанности со 100% эффективностью. Для того, чтобы произвести впечатление на покупателей и клиентов, необходимо профессионально подойти к разработке интерьера магазина (шоу-рум). Можно сделать вывод, что без правильного, созданного по всем правилам интерьера магазина (шоу-рум), не обойтись.
Что делать, если в штате компании нет собственного дизайнера? Необходимо обратиться в дизайн-студию «Фасад Медиа Групп». Многие клиенты нашей компании заказывают услугу по разработке интерьера магазина (шоу-рум) в нашей компании.
Рекламно-производственная компания "Фасад Медиа Групп" занимается разработкой интерьеров магазинов (шоу-рум) «под ключ»:
Выбирая нашу компанию, вы получаете высокий уровень сервиса и разумные цены.
ДИЗАЙН МАГАЗИНА (ШОУ-РУМ) В ГОРНО-АЛТАЙСКЕ
.jpg)
Планируете заказать дизайн магазина (шоу-рум) у профессиональных дизайнеров в Горно-Алтайске? – обращайтесь по телефону: 8 800 201-23-74 или оставьте заявку на сайте. Дизайн магазина (шоу-рум) «под ключ» гарантируем!
Что такое дизайн магазина (шоу-рум)?
Наши клиенты часто задают вопрос: «Что такое дизайн магазина (шоу-рум)». Отвечая на данный вопрос, специалисты нашей компании указывают, что дизайн (от англ. design – проектировать, чертить, задумать, а также проект, план, рисунок) – это деятельность по проектированию эстетических свойств промышленных изделий («художественное конструирование»), а также результат этой деятельности (например, в таких словосочетаниях, как «дизайн автомобиля»). Под словом «design» англоязычная литература начала XXI века понимает и стиль, и проект, и проектирование, и собственно «дизайн» – профессиональную деятельность, наряду с архитектурой или инженерным проектированием.
Каковы основные категории объекта дизайна?
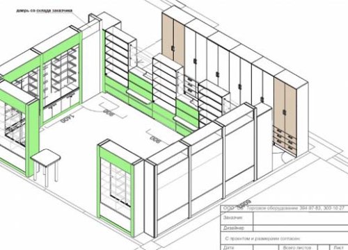
Примеры дизайна помещений магазина (шоу-рум) приведены ниже:

Дизайн магазина (шоу-рум). Пример 1

Дизайн магазина (шоу-рум). Пример 2

Дизайн магазина (шоу-рум). Пример 3

Дизайн магазина (шоу-рум). Пример 4

Дизайн магазина (шоу-рум). Пример 5
Какие бывают виды дизайна?
Существует большое количество разновидностей дизайна. Разнообразность определений «дизайнов» точно выразил Томас Мальдонадо: «Различные философии дизайна являются выражением различного отношения к миру. Место, которое мы отводим дизайну в мире, зависит от того, как мы понимаем этот мир…». Итак, приводим основные виды дизайна:
Как видим, существует большое количество разновидностей дизайна. Каждый из указанных видов дизайна предназначен для решения задач в определенной сфере. Однако существует дизайн, который не заменим в бизнесе. Речь идет о дизайне интерьера магазина (шоу-рум), а также помещений магазина (шоу-рум): кабинета директора, торгового зала, кладовой, фасовочной, подсобной, комнаты отдыха работников и других помещений магазина (шоу-рум). В настоящее информационное время эффективный бизнес немыслим без удобного, эргономичного рабочего пространства. Порой с помощью оригинального интерьера магазина (шоу-рум) бизнесмену удается произвести положительное впечатление на посетителей, клиентов и покупателей, привлечь новых клиентов, повысить процент продаж. Можно сделать вывод, что с помощью престижного магазина (шоу-рум) руководство компании может повысить прибыльность собственного предприятия, а работники предприятия могут увеличить производительность труда благодаря эргономичным рабочим местам.

Сколько стоит оформление магазина (шоу-рум) в фирменном стиле в Горно-Алтайске?
Стоимость оформления магазина (шоу-рум) в корпоративном стиле в Горно-Алтайске не является фиксированной. Цены вариативны и зависят от различных факторов. Большое влияние на ценовую политику оказывают:
Дополнительно необходимо отметить, что вид магазина (шоу-рум) и его размеры, количество дизайн-макетов, срочность заказа являются основными факторами, влияющими на стоимость дизайна магазина (шоу-рум) в Горно-Алтайске. Вместе с тем, в нашей компании действуют прогрессивные скидки, позволяющие компаниям даже с небольшим бюджетом заказывать интерьер рабочего пространства в нашей дизайн-студии.
Можно заключить, что разработка оригинальных художественных элементов для помещений магазина (шоу-рум) в Горно-Алтайске и Республике Алтай стоит недорого. Денежные средства, вложенные в разработку оригинального дизайна интерьера магазина (шоу-рум), окупаются быстро, а высокая эффективность профессионального дизайна помещений магазина (шоу-рум) способствует эффективной, плодотворной работе, и, как следствие, приводит к увеличению потока покупателей и повышению процента продаж.
Планируя разработку фирменного стиля помещений магазина (шоу-рум), руководитель компании, зачастую, во главу угла ставит именно финансовый аспект. Поэтому стоимость дизайна интерьера магазина (шоу-рум) в Горно-Алтайске является важным вопросом. Для получения коммерческого предложения об условиях и ценах профессионального дизайна интерьера рабочего пространства в Горно-Алтайске необходимо предоставить следующую информацию:
Предоставление указанной выше информации является необходимым условием для получения ценового предложения (прайса) по разработке фирменного стиля магазина (шоу-рум). После получения указанной информации наши менеджеры смогут подготовить коммерческое предложение с учетом ваших целей и задач.

Услуги по разработке дизайна интерьера магазина (шоу-рум) в Горно-Алтайске
Компания «Фасад Медиа Групп» разрабатывает дизайн магазина (шоу-рум) в Горно-Алтайске на профессиональной основе. Мы оказываем следующий перечень услуг:
Как можно видеть, наша компания оказывает полный перечень услуг по разработке интерьера магазина (шоу-рум) в Горно-Алтайске. Благодаря большому опыту работы и профессионализму наших дизайнеров, мы качественно оказываем услуги, а работы всегда выполняем в полном объеме и в установленный срок.

Сроки выполнения работ по разработке дизайна интерьера магазина (шоу-рум) в Горно-Алтайске
Срок разработки дизайна интерьера магазина (шоу-рум) является принципиальным моментом для предпринимателей, поскольку чем быстрее компания начнет работу в красивом, органичном и удобном магазине (шоу-рум), тем быстрее можно будет сообщить о начале продажи товаров и оказания услуг, а работники смогут быстрее приступить к исполнению своих обязанностей в красивом и эргономичном помещении. Зачастую наши клиенты спрашивают: «Каков минимальный срок изготовления дизайн-проекта интерьера магазина (шоу-рум)?». Отвечая на данный вопрос, можно отметить, что минимальный срок выполнения работ по разработке дизайн-проекта магазина (шоу-рум) в Горно-Алтайске составляет 3 рабочих дня. Что касается максимального срока выполнения работ, то он рассчитывается индивидуально исходя из вида и размеров магазина (шоу-рум), количества помещений магазина (шоу-рум), срочности заказа, сезонности, а также наличия свободных трудовых ресурсов.
Разработку дизайна магазина (шоу-рум) можно разделить на несколько этапов:
Несмотря на то, что минимальный срок подготовки дизайна магазина составляет 3 рабочих дня, в некоторых случаях указанный срок может быть продолжительным. Для получения более подробной информации по данному вопросу, обращайтесь к специалистам нашей компании. Будем рады помочь.

Плюсы профессионального дизайна помещений магазина (шоу-рум) в Горно-Алтайске
Профессиональный дизайн магазина (шоу-рум) в Горно-Алтайске пользуется спросом среди представителей бизнеса. Интерьер магазина (шоу-рум), выполненный профессиональным дизайнером, свидетельствует о престиже компании, а клиентам или посетителям сообщает о том, что руководство организации заботится о статусе компании, дорожит деловой репутацией и ответственно подходит к ведению дел.
Работники компании, находясь в удобном, эргономичном рабочем пространстве, выполняют свои обязанности с большей отдачей и повышенной работоспособностью, дорожат своей должностью и приносят компании большую прибыль. Интерьер магазина (шоу-рум), разработанный профессиональным дизайнером, является эффективным и выгодным решением для формирования положительного отношения к бренду компании у потенциальных покупателей, клиентов и заказчиков.
Профессионально изготовленные интерьеры помещений магазина (шоу-рум) с качественным дизайном сочетают в себе преимущества, которые позволяют коллективу компании наиболее продуктивно выполнять возложенные на него обязанности.
Итак, стоит ли тратить денежные средства на разработку интерьера магазина (шоу-рум) профессиональным дизайнером? На данный вопрос следует дать положительный ответ. Назовем некоторые плюсы оформления магазина (шоу-рум) в фирменном стиле:
Как видно, магазин (шоу-рум), интерьер которого выполнен профессиональным дизайнером, обладает целым набором положительных черт, которые помогают компании добиваться еще больших результатов на поприще бизнеса.

Способы оплаты работ по разработке дизайн-проектов помещений магазина (шоу-рум) в Горно-Алтайске
Рекламно-производственная компания «Фасад Медиа Групп» предлагает своим клиентам следующие способы оплаты работ по разработке дизайн-проектов помещений магазина (шоу-рум):
Внимание! Мы работаем по 100% предоплате. После поступления денежных средств начинается процесс изготовления дизайна магазина (шоу-рум). Днем поступления оплаты считается день зачисления денежных средств на расчетный счет ООО «Фасад Медиа Групп».
| Вид услуги | Сроки оказания услуг | Стоимость | Оплата | Налог | Отчет |
|---|
ПРЕИМУЩЕСТВА ДИЗАЙНА ИНТЕРЬЕРА МАГАЗИНА (ШОУ-РУМ)
Престиж магазина (шоу-рум)
Престиж (фр. prestige – авторитет, уважение) – это положительная оценка или мнение окружающих людей о том или ином явлении, человеке, организации. Что дает престиж? Имея положительную оценку от окружающих людей, можно с легкостью завоевать их одобрение и доверительное отношение.
В сфере бизнеса данное обстоятельство дорого ценится. Существуют различные способы, чтобы завоевать доверие людей. Один из них – это продемонстрировать красивый интерьер рабочего пространства компании. Оригинальный дизайн интерьера магазина (шоу-рум) способен произвести впечатление на потенциальных покупателей, заказчиков, клиентов. Магазин (шоу-рум), интерьер которого представляет собой удобное, эргономичное рабочее пространство, разработанное профессиональной дизайн-студией, выгодно отличает компанию от конкурентов, а также свидетельствует о том, что руководство организации ответственно подходит к ведению дел.
Да, магазин (шоу-рум), интерьер которого разработан профессиональными дизайнерами, отличающийся продуманными техническими и эргономичными решениями, – это удовольствие не из дешевых. Однако, он способен заявить бизнес-партнерам, клиентам и покупателям, в том числе, о стабильном финансовом положении вашего бизнеса, о положительной динамике роста доходов вашей организации, успехе в ведении дел.
Таким образом, дизайнерски оформляя интерьер магазина (шоу-рум), вы заявите окружающим, что вам можно доверять, с вами можно иметь дело, у вас хорошая репутация и вы серьезно настроены на развитие собственной компании и повышению уровня ее престижа. Отношения с престижной и устойчивой компанией вселяют в людей уверенность и уважение, дают чувство спокойствия и защищенности. Формирование положительной репутации вашей компании – это инвестиция в ваше успешное будущее. Ничто не стоит так дорого, как положительный имидж. Люди, занимающиеся бизнесом, знают это не понаслышке.
Повышение работоспособности сотрудников
Многие работодатели задумываются над вопросом: как сделать труд работников более продуктивным? При попытке решить данную проблему каждый работодатель сталкивался с понятием «работоспособность». Итак, что же такое «работоспособность»?
Работоспособность – это потенциальная возможность индивида, в нашем случае работника, выполнять целесообразную деятельность на заданном уровне эффективности в течение определенного времени. Работоспособность зависит от внешних условий деятельности и психофизиологических ресурсов работника.
Существует большое количество способов добиться того, чтобы работник качественно и на высоком профессиональном уровне выполнял возложенные на него обязанности. Однако иногда сотруднику компании сложно трудиться с высокой отдачей по объективным, не зависящим от него причинам. Одной из таких причин может быть низкая эргономичность помещений магазина (шоу-рум).
Что такое эргономичность? Под эргономичностью в самом широком смысле понимается удобство, пригодность использования какого-либо предмета или продукта. Под эргономичностью в нашем случае понимается удобство магазина (шоу-рум), продуманность рабочих зон, правильное расположение мебели и оргтехники, а также пригодность магазина (шоу-рум) к исполнению работниками возложенных на них обязанностей. Можно сделать вывод, что, чем больше удобства в магазине (шоу-рум), тем легче работникам трудиться со 100% отдачей. Следовательно, магазин (шоу-рум), интерьер которого продуман профессиональным дизайнером, способен повысить производительность труда и работоспособность сотрудников.
Экономия рабочего пространства и времени
Не секрет, что каждая компания, организация или предприятие независимо от размеров капитала и объема занимаемого рынка стремиться к экономии. Причем под экономией понимается не только экономия финансовых ресурсов или капитала, но и экономия времени, трудовых ресурсов, пространства магазина (шоу-рум), занимаемого в торговом центре или в ином здании. Проведение грамотной экономики и хорошо организованная экономия ресурсов, зачастую, позволяет компаниям снизить расходы, а сэкономленные денежные средства направить на новые проекты.
Возникает вопрос, что может позволить компании сэкономить? Ответ прост: магазин (шоу-рум), выполненный по дизайн-проекту. И правда, удобное, эргономичное рабочее пространство позволяет значительно экономить время, денежные средства и пространство занимаемого магазина (шоу-рум). Продуманные технические и дизайнерские решения позволяют руководству организации осуществлять слаженное управление рабочим коллективом, работникам – выполнять возложенные на них обязанности со 100% эффективностью, бухгалтеру – экономить для компании средства, которые были бы потрачены на лишнюю мебель, оргтехнику и другие ненужные материальные ресурсы.
Итак, можно сделать вывод, что интерьер рабочего пространства, разработанный профессиональным дизайнером, позволяет экономить время и деньги для компании. Следовательно, те компании и организации, которые стремятся построить процветающий бизнес, просто обязаны иметь магазин (шоу-рум), интерьер которого разработан профессиональной дизайн-студией.
СОВЕТЫ ПО ФОРМЛЕНИЮ ИНТЕРЬЕРА МАГАЗИНА (ШОУ-РУМ)

Подготовьте или закажите дизайн-проект
Наши клиенты часто задают нашим менеджерам вопрос: «Что такое дизайн магазина (шоу-рум)». Отвечая на данный вопрос, специалисты нашей компании указывают, что дизайн (от англ. design – проектировать, чертить, задумать, а также проект, план, рисунок) – это деятельность по проектированию эстетических свойств промышленных изделий («художественное конструирование»), а также результат этой деятельности (например, в таких словосочетаниях, как «дизайн автомобиля»). Под словом «design» англоязычная литература начала XXI века понимает и стиль, и проект, и проектирование, и собственно «дизайн» – профессиональную деятельность, наряду с архитектурой или инженерным проектированием.
Для того, чтобы оформить интерьер магазина (шоу-рум) профессионально, красиво и эргономично, необходимо изготовить дизайн-проект будущего интерьера. Подготовкой дизайн-проекта могут заняться как дизайнеры компании, так и сторонние дизайн-студии. Вместе с тем, лучше доверить разработку интерьера рабочего пространства профессионалам, которые знают все нюансы и тонкости задачи разработки и проектирования оригинальных художественных элементов интерьера магазина (шоу-рум).
Закупите качественные отделочные материалы
После того, как подготовлен, разработан дизайн-проект магазина (шоу-рум), необходимо закупить качественные отделочные материалы. Если у компании еще не было опыта по отделке помещений магазина (шоу-рум), то данную задачу лучше доверить либо дизайнеру, который разрабатывал проект магазина (шоу-рум), либо профессиональным рабочим, которые впоследствии будут воплощать дизайнерские решения по оформлению магазина (шоу-рум) в жизнь.
При закупке отделочных материалов для магазина (шоу-рум) вам необходимо будет решить ряд задач:
- какое количество отделочных материалов вам понадобиться;
- материалы какого производителя закупить;
- сколько денежных средств выделить на закупку.
При закупке отделочных материалов лучше советоваться с дизайнером, который готовил дизайн-проект. Как правило, дизайнеры, при разработке интерьера магазина (шоу-рум), уже четко представляют, какие отделочные материалы должны быть применены при воплощении идеи в жизнь.
Подберите ответственную бригаду рабочих
Одним из важных этапов при воплощении дизайнерского проекта магазина (шоу-рум) в жизнь является этап подбора строительной бригады. Не секрет, что среди отделочников зачастую можно встретить дилетантов. Итак, по каким критериям необходимо выбирать рабочих? Даем несколько советов:
- готовность к выполнению работ: строительная бригада должна быть свободна от иных заказов, и должна быть готова приступить к выполнению вашего немедленно;
- адекватное поведение: все строители должны быть адекватными, непьющими, работоспособными;
- умение читать чертежи и разговаривать на языке заказчика: ответственный работник должен понимать, что от него требуется в рамках реализации дизайн-проекта помещений магазина (шоу-рум). Как минимум, рабочий должен понимать язык, на котором говорит заказчик и обладать элементарными навыками разбора чертежей;
- опрятность: каждый строитель, который будет проводить отделку магазина (шоу-рум) по разработанному дизайн-проекту должен не только выглядеть опрятно, но и производить работы чисто или, по крайней мере, соблюдая максимальную опрятность.
Что такое дизайн магазина (шоу-рум)?
Наши клиенты часто задают нашим дизайнерам вопрос: «Что такое дизайн магазина (шоу-рум)». Отвечая на данный вопрос, специалисты нашей компании указывают, что дизайн (от англ. design – проектировать, чертить, задумать, а также проект, план, рисунок) – это деятельность по проектированию эстетических свойств промышленных изделий («художественное конструирование»), а также результат этой деятельности (например, в таких словосочетаниях, как «дизайн автомобиля»). Под словом «design» англоязычная литература начала XXI века понимает и стиль, и проект, и проектирование, и собственно «дизайн» – профессиональную деятельность, наряду с архитектурой или инженерным проектированием.
Каковы основные категории объекта дизайна?
Примеры дизайна помещений магазина (шоу-рум) приведены ниже:

Дизайн магазина (шоу-рум). Пример 1

Дизайн магазина (шоу-рум). Пример 2

Дизайн магазина (шоу-рум). Пример 3

Дизайн магазина (шоу-рум). Пример 4

Дизайн магазина (шоу-рум). Пример 5
Какие бывают виды дизайна?
Существует большое количество разновидностей дизайна. Разнообразность определений «дизайнов» точно выразил Томас Мальдонадо: «Различные философии дизайна являются выражением различного отношения к миру. Место, которое мы отводим дизайну в мире, зависит от того, как мы понимаем этот мир…». Итак, приводим основные виды дизайна:
Как видим, существует большое количество разновидностей дизайна. Каждый из указанных видов дизайна предназначен для решения задач в определенной сфере. Однако существует дизайн, который не заменим в бизнесе. Речь идет о дизайне интерьера магазина (шоу-рум), а также помещений магазина (шоу-рум): кабинета директора, торгового зала, кладовой, фасовочной, подсобной, комнаты отдыха работников и других помещений магазина (шоу-рум). В настоящее информационное время эффективный бизнес немыслим без удобного, эргономичного рабочего пространства. Порой с помощью оригинального интерьера магазина (шоу-рум) бизнесмену удается произвести положительное впечатление на посетителей, клиентов и покупателей, привлечь новых клиентов, повысить процент продаж. Можно сделать вывод, что с помощью престижного магазина (шоу-рум) руководство компании может повысить прибыльность собственного предприятия, а работники предприятия могут увеличить производительность труда благодаря эргономичным рабочим местам.
Для чего нужно дизайнерски оформлять рабочее пространство?
Потребность бизнеса в профессиональном дизайне магазина (шоу-рум) велика и обусловлена целым рядом факторов. Возникает вопрос: почему бизнес уделяет большое внимание разработке фирменного стиля помещений магазина (шоу-рум)? Необходимо отметить, что профессиональное оформление рабочего пространства используется в нескольких целях, при этом главными являются:
1) дизайнерские магазины (шоу-рум) – элемент привлечения внимания;
2) дизайнерские магазины (шоу-рум) – часть имиджа компании;
3) дизайнерские магазины (шоу-рум) – помощь в конкуренции.
В первом случае, магазины (шоу-рум), оформленные профессиональным дизайнером, используются, чтобы помочь предпринимателям обратить внимание потенциальных покупателей, заказчиков и клиентов на собственную компанию. Не секрет, что каждый предприниматель желает быть более заметным для потенциальных покупателей и клиентов. Данная потребность особенно значима в условиях, когда город пестрит неоновыми вывесками, рекламными конструкциями, красивыми фасадам зданий и сооружений. Если не использовать дизайнерские магазины (шоу-рум), то потенциальный покупатель или заказчик может и не обратить внимание на вашу компанию. Вы для него будете одним из многих бизнесов, которые не заботятся об имидже компании и являются «серыми мышками» бизнес-сообщества. Зачастую, отсутствие магазина (шоу-рум), оформленного в фирменном стиле, может привести к потере клиентов, покупателей, заказчиков и, как следствие, потере прибыли, что всегда негативно сказывается на эффективности бизнеса.
Во втором случае дизайнерские магазины (шоу-рум) могут использоваться как элемент имиджа, позволяющий сформировать положительный образ вашему бизнесу. Следовательно, дизайнерские магазины (шоу-рум) выступают в качестве способа продвижения бренда компании. Корпоративное оформление магазина (шоу-рум) компании позволяет выделить вашу организацию среди аналогичных и продемонстрировать устойчивое развитие вашего бизнеса.
И наконец, дизайнерские магазины (шоу-рум) могут помочь в борьбе за клиентов и покупателей, т.е. могут использоваться как преимущество в конкурентной борьбе. Данное обстоятельство играет главную роль в условиях повышенной конкуренции. Зачастую, в городской среде покупателям, клиентам, заказчикам нет разницы, в какую организацию или компанию обращаться за покупкой товара или оказанием услуги. Следовательно, бизнесмену необходимо выделить именно свой бизнес и привлечь, таким образом, покупателей или клиентов в магазин (шоу-рум) именно своей компании. Для этого предприниматели зачастую используют дизайнерское оформление помещений магазина (шоу-рум), выполненное по индивидуальному эскизу, что позволит обратить на себя внимание потенциальных клиентов и покупателей.
Из изложенного выше можно сделать вывод, что дизайнерские магазины (шоу-рум) являются незаменимым решением, которое используется для привлечения внимания потенциальных покупателей, клиентов и заказчиков к магазину (шоу-рум), рекламируемому товару, способствует популяризации бизнеса, что приводит к успешной продаже товаров и предложению услуг.

Что такое дизайн-проектирование помещений магазина (шоу-рум)?
Под дизайн-проектированием помещений магазина (шоу-рум) принято понимать процесс определения архитектуры, компонентов, интерфейсов и других характеристик дизайн-макета интерьера магазина (шоу-рум). Результатом дизайн-проектирования является дизайн-проект – целостная совокупность моделей, свойств или характеристик, описанных в форме, пригодной для дизайнерского оформления магазина (шоу-рум).
Дизайн-проектирование помещений магазина (шоу-рум) представляет собой целенаправленную деятельность, которая обладает последовательностью процедур, ведущих к достижению эффективных решений. В настоящее время предложен ряд структур и алгоритмов дизайн-проектирования, совпадающих в основных чертах и различающихся только в содержании или названии отдельных этапов.
Методы дизайн-проектирования дизайна интерьера магазина (шоу-рум)
К методам дизайн-проектирования дизайна интерьера магазина (шоу-рум) относятся следующие:
1) Эвристические методы:
2) Экспериментальные методы:
3) Формализованные методы
Каждый из указанных методов должен использоваться в системе остальных подходов для того, чтобы процесс дизайн-проектирования интерьера магазина (шоу-рум) смог завершится в срок и с высокой степенью результативности.
Этапы дизайн-проектирования интерьера магазина (шоу-рум)
Выше указывалось, что дизайн-проектирование помещений магазина (шоу-рум) – это процесс, состоящий из целого ряда логически последовательных действий, которые представляют собой систему и направлены на определенный результат, а именно: создание дизайн-проекта будущего магазина (шоу-рум).
Процесс дизайн-проектирования рабочего пространства разбивается на несколько этапов. К основным этапам дизайн-проектирования фирменного стиля относятся:
Как можно видеть, наша компания оказывает полный перечень услуг по разработке интерьера магазина (шоу-рум) в Горно-Алтайске. Благодаря большому опыту работы и профессионализму наших дизайнеров, мы качественно оказываем услуги, а работы всегда выполняем в полном объеме и в установленный срок.

Стоимость дизайн-проектирования магазина (шоу-рум) компании
Зачастую клиенты нашей компании задают вопрос о том, сколько стоит дизайн-проектирование помещений магазина (шоу-рум)? Отвечая на данный вопрос, можем привести следующие цифры:
Обращаем внимание, что указанные суммы не являются публичной офертой и рассчитываются в каждом случае индивидуально. Процесс дизайн-проектирования рабочего места магазина (шоу-рум) является уникальным и не рутинным мероприятием, которое требует индивидуального подхода. Поэтому, для получения более точной информации о том, сколько стоит изготовить дизайнерский макет интерьера магазина (шоу-рум) компании, необходимо обращаться к специалистам нашей дизайн-студии. Будем рады сотрудничеству.
Уважаемые друзья! За разработкой дизайн-проекта эргономичного магазина (шоу-рум) обращайтесь в дизайн-студию «Фасад Медиа Групп». Высокий уровень сервиса и низкие цены гарантируем. Мы все сделаем сами: разработка концепции, изготовление дизайн-макета, корректировка, внесение изменений и воплощение в жизнь самых смелых решений.
Обращайтесь 88002012374@mail.ru или 8 800 201-23-74
Какие требования предъявляются к дизайн-макетам?
Приводим общие требования к дизайн-макетам:
Внимание! Заказчик самостоятельно несет ответственность за допущенные орфографические, пунктуационные, стилистические ошибки.Макет согласован только в том случае, если от вас поступит сообщение в письменном виде на электронную почту о факте проверки вами макета и его одобрения.
Можно ли заказать изготовление дизайн-макета в ООО «Фасад Медиа Групп»?
Макет рекламы можно заказать у нас. Мы имеем большой опыт по изготовлению дизайн-макетов. Наши дизайнеры являются профессионалами и обладают большим опытом работы. Ниже приведены условия по дизайну макетов для магазина (шоу-рум):
|
Услуга |
Кол-во |
Срок работы |
Цена |
|
Дизайн макета |
1 шт. |
от 1 до 2 дней |
от 500 руб. |
|
Коррекция готовых макетов |
1 шт. |
1 день |
от 300 руб. |
|
Отрисовка схем |
1 шт. |
от 1 до 3 дней |
от 350 руб. |
|
Обработка фотографий, рисунков, эскизов и т.д. |
1 шт. |
от 1 до 3 дней |
от 150 руб. |
|
Коррекция текста |
1 шт. |
1 день |
от 200 руб. |
|
Ретушь, цветокоррекция, замена фона |
1 шт. |
1 день |
от 450 руб. |
|
Коллажирование и фотомонтаж |
1 шт. |
1 день |
от 900 руб. |
|
Привязать макет к объекту, фасаду (визуализация) |
1 шт. |
1 день |
от 150 руб. |
|
Изменение размера макета |
1 шт. |
1 день |
от 250 руб. |
*Цены не являются публичной офертой.
Какая информация предоставляется заказчиком для создания дизайн-макета?
Для создания дизайн-макета нашими дизайнерами от вас требуется:
Наши дизайнеры предоставят несколько вариантов макета на выбор. Правки вносим до согласования с вами, но не более 3 раз. При проверке готового макета, просьба:
Как сделать дизайн-макет самостоятельно?
Для того, чтобы сделать дизайн-макет, не обязательно обращаться к профессионалам. Макет можно сделать самостоятельно. Сейчас в сети Интернет появилось большое количество онлайн-редакторов, которые предлагают полный набор функций по изготовлению, дизайну макетов. Вот один из них: редактор. Также можно приобрести специальные программы, которые используются профессионалами для создания макетов. К таким программам относятся, в частности Adobe InDesign, Adobe Illustrator, Adobe Photoshop. Однако если вы хотите, чтобы макет был качественным, то лучше воспользоваться услугами профессиональных дизайнеров, тем более, что стоимость работ не так высока.
Уважаемые друзья! За разработкой дизайн-проекта эргономичного магазина (шоу-рум) обращайтесь в дизайн-студию «Фасад Медиа Групп». Высокий уровень сервиса и низкие цены гарантируем. Мы все сделаем сами: разработка концепции, изготовление дизайн-макета, корректировка, внесение изменений и воплощение в жизнь самых смелых решений.
Обращайтесь 88002012374@mail.ru или 8 800 201-23-74
Каковы сроки разработки дизайн-проекта магазина (шоу-рум)?
Срок разработки дизайна интерьера магазина (шоу-рум) является принципиальным моментом для предпринимателей, поскольку чем быстрее компания начнет работу в красивом, органичном и удобном магазине (шоу-рум), тем быстрее можно будет сообщить о начале продажи товаров и оказания услуг, а работники смогут быстрее приступить к исполнению своих обязанностей в красивом и эргономичном помещении. Зачастую наши клиенты спрашивают: «Каков минимальный срок изготовления дизайн-проекта интерьера магазина (шоу-рум)?». Отвечая на данный вопрос, можно отметить, что минимальный срок выполнения работ по разработке дизайн-проекта магазина (шоу-рум) в Горно-Алтайске составляет 3 рабочих дня. Что касается максимального срока выполнения работ, то он рассчитывается индивидуально исходя из вида и размеров магазина (шоу-рум), количества помещений магазина (шоу-рум), срочности заказа, сезонности, а также наличия свободных трудовых ресурсов.
Разработку дизайна магазина (шоу-рум) можно разделить на несколько этапов:
Несмотря на то, что минимальный срок подготовки дизайна магазина составляет 3 рабочих дня, в некоторых случаях указанный срок может быть продолжительным. Для получения более подробной информации по данному вопросу, обращайтесь к специалистам нашей компании. Будем рады помочь.
Уважаемые друзья! За разработкой дизайн-проекта эргономичного магазина (шоу-рум) обращайтесь в дизайн-студию «Фасад Медиа Групп». Высокий уровень сервиса и низкие цены гарантируем. Мы все сделаем сами: разработка концепции, изготовление дизайн-макета, корректировка, внесение изменений и воплощение в жизнь самых смелых решений.
Обращайтесь 88002012374@mail.ru или 8 800 201-23-74
Сколько стоит оформление магазина (шоу-рум) в фирменном стиле в Горно-Алтайске?
Стоимость оформления магазина (шоу-рум) в корпоративном стиле в Горно-Алтайске не является фиксированной. Цены вариативны и зависят от различных факторов. Большое влияние на ценовую политику оказывают:
Дополнительно необходимо отметить, что вид магазина (шоу-рум) и его размеры, количество дизайн-макетов, срочность заказа являются основными факторами, влияющими на стоимость дизайна магазина (шоу-рум) в Горно-Алтайске. Вместе с тем, в нашей компании действуют прогрессивные скидки, позволяющие компаниям даже с небольшим бюджетом заказывать интерьер рабочего пространства в нашей дизайн-студии.
Можно заключить, что разработка оригинальных художественных элементов для помещений магазина (шоу-рум) в Горно-Алтайске и Республике Алтай стоит недорого. Денежные средства, вложенные в разработку оригинального дизайна интерьера магазина (шоу-рум), окупаются быстро, а высокая эффективность профессионального дизайна помещений магазина (шоу-рум) способствует эффективной, плодотворной работе, и, как следствие, приводит к увеличению потока покупателей и повышению процента продаж.
Планируя разработку фирменного стиля помещений магазина (шоу-рум), руководитель компании, зачастую, во главу угла ставит именно финансовый аспект. Поэтому стоимость дизайна интерьера магазина (шоу-рум) в Горно-Алтайске является важным вопросом. Для получения коммерческого предложения об условиях и ценах профессионального дизайна интерьера рабочего пространства в Горно-Алтайске необходимо предоставить следующую информацию:
Предоставление указанной выше информации является необходимым условием для получения ценового предложения (прайса) по разработке фирменного стиля магазина (шоу-рум). После получения указанной информации наши менеджеры смогут подготовить коммерческое предложение с учетом ваших целей и задач.
Уважаемые друзья! За разработкой дизайн-проекта эргономичного магазина (шоу-рум) обращайтесь в дизайн-студию «Фасад Медиа Групп». Высокий уровень сервиса и низкие цены гарантируем. Мы все сделаем сами: разработка концепции, изготовление дизайн-макета, корректировка, внесение изменений и воплощение в жизнь самых смелых решений.
Обращайтесь 88002012374@mail.ru или 8 800 201-23-74
Рекламное агентство «Фасад Медиа Групп» предлагает гибкие условия изготовления дизайнерских магазинов (шоу-рум) в Горно-Алтайске и Республике Алтай, выгодные цены.
Примеры наших работ по изготовлению дизайнерских магазинов (шоу-рум) представлены ниже:
![]() |
![]() |
![]() |
Уважаемые друзья! За разработкой дизайн-проекта эргономичного магазина (шоу-рум) обращайтесь в дизайн-студию «Фасад Медиа Групп». Высокий уровень сервиса и низкие цены гарантируем. Мы все сделаем сами: разработка концепции, изготовление дизайн-макета, корректировка, внесение изменений и воплощение в жизнь самых смелых решений.
Обращайтесь 88002012374@mail.ru или 8 800 201-23-74
Принимаем заявку
Позвоните или оставьте
заявку на сайте
Предлагаем услуги
Анализируем проблему
и предлагаем решение
Заключаем договор
Приходим к соглашению и подписываем документы
Оказываем услуги
Выполняем обязательства в полном объеме и в срок
Многие рекламные конструкции находятся в управлении нашего рекламного агентства. Это дает нам возможность устанавливать разумные цены без лишних комиссий и условий.
Наружная реклама
Реклама на радио
Реклама на телевидении
Реклама в интернете и печатных СМИ
Реклама на/в транспорте
Реклама в помещениях
Изготовление рекламы
Фасад Медиа Групп – это высокотехнологичное рекламное агентство, талантливый и креативный коллектив которого воплощает в жизнь сложные, смелые и интересные рекламные проекты.
На сайте используются файлы Cookie и Рекомендательные технологии. Продолжив работу с сайтом, Вы соглашаетесь с Политикой обработки персональных данных и правилами пользования сайтом